Hannah Godwin Interior Design and Architecture About me Work Contact Blog

Production Information

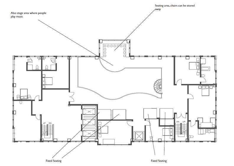
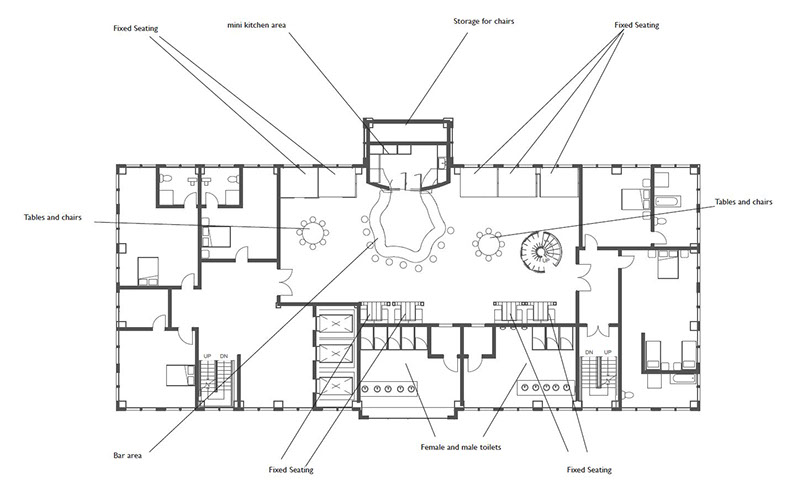
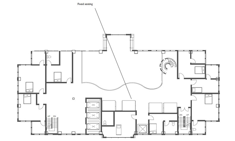
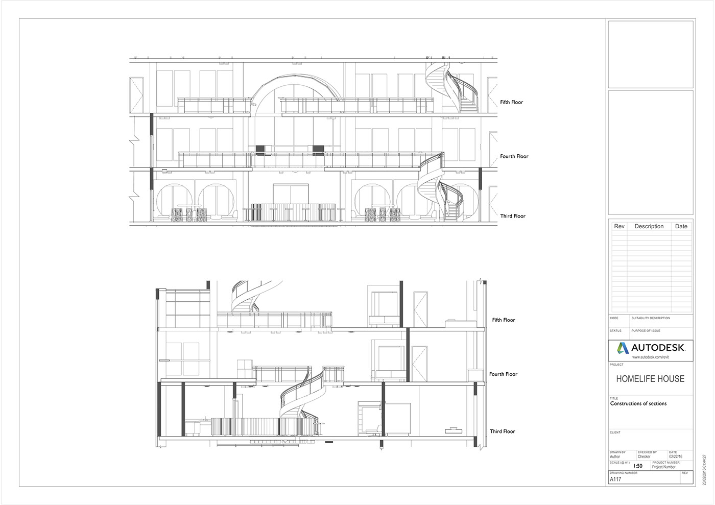
From the Making Places project we were told to focus on one area of the building. I decided to focus on the bar area. Following the concept idea of music, I created an area above the stage where live music would be played. I created bespoke fixed seating which allows the user to have there own private booths and watch the live performance on the higher ground. This area covers three floors and an atrium allows the live music to be seen at different levels.

F F & E