Making Places

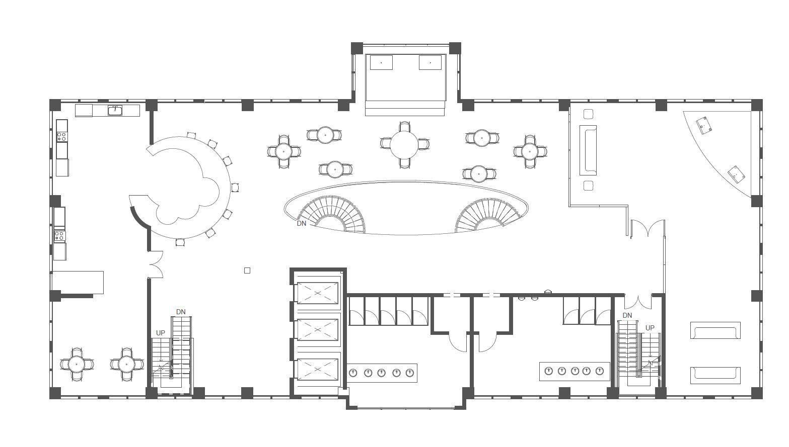
Given the already existing building "Homelife House" which is situated in Bournemouth. The brief of this project was to design the interior of this building to be a hotel. It was also part of the brief to come up with an interesting concept to attract people to the Hotel. I thought about Bournemouth and how music has such a huge influence to the town. There's the BIC and many other music inspired pubs around the area as well as loads of music loving students, grown ups and older generation. My concept for the hotel is music. Live music will be played in different areas on the different levels at different times of the day. There would also be recording studios where live music can be streams for guests to watch on interactive screens in the public spaces of the hotel as well as guests rooms.
Contact Work Hannah Godwin About me Interior Design and Architecture Blog

Visuals